3950,00 zł




Piętra
2Pokoje
5Łazienki
2Powierzchnia
70.88 m²Type zabudowy
Dom jednorodzinnyOryginalna forma to połączenie dwóch kontrastujących stylów łącząca tradycyjne dachy okapowe ze współczesnymi trendami bezokapowymi. Zabieg ten pozwolił na uzyskanie przekrycia dwóch tarasów części wejściowej i wypoczynkowej w głównej bryle budynku bez potrzeby stosowania dodatkowych elementów takich jak pergole, markizy i parasole. Junior to strzał w dziesiątkę dla wszystkich, którzy cenią sobie funkcjonalność połączoną z ekonomią.

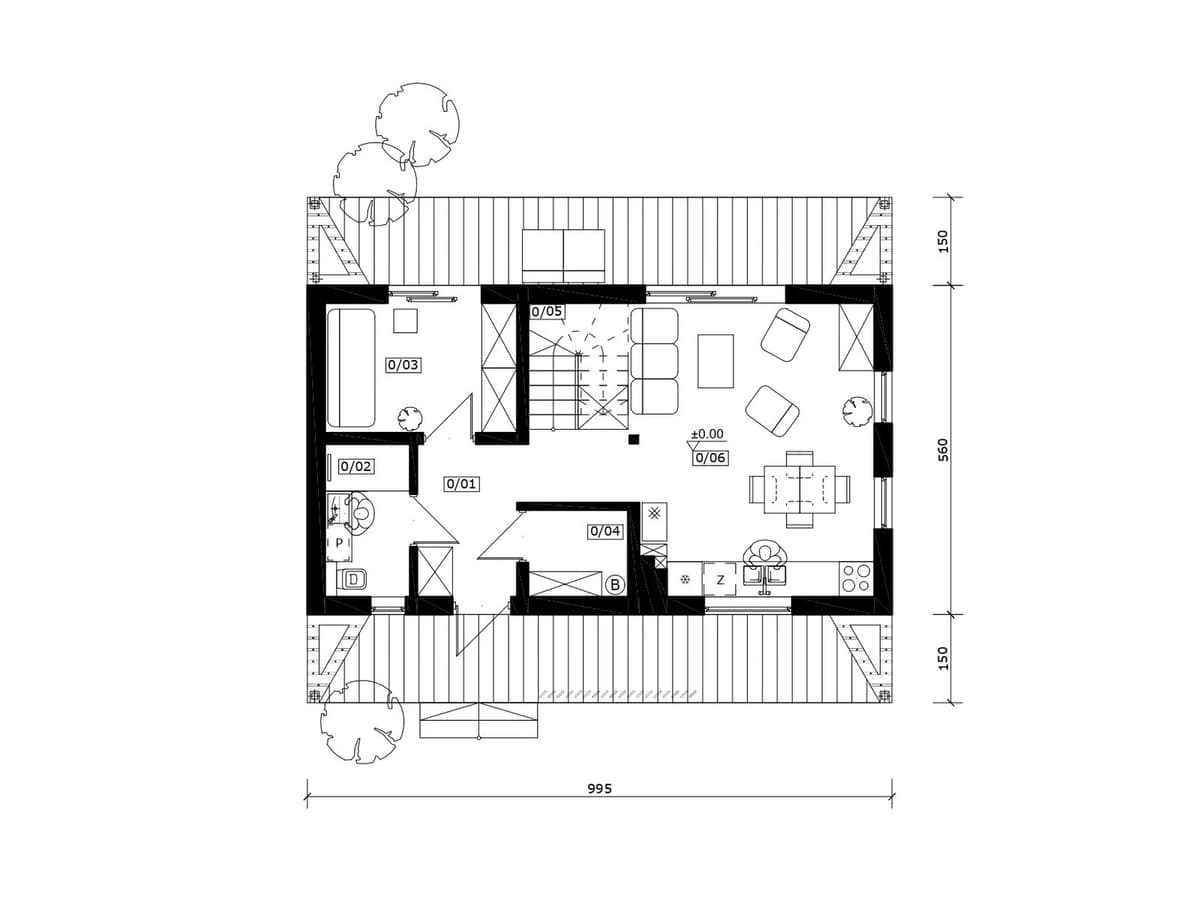
Komunikacja
6.73 m²
Łazienka
3.77 m²
Pokój
7.22 m²
Pomieszczenie gospodarcze
2.51 m²
Klatka schodowa
3.65 m²
Salon z aneksem kuchennym
19.89 m²
Budynek na kondygnacji parteru posiada część dzienną z aneksem kuchennym oraz dodatkowy pokój z możliwością adaptacji wg indywidualnych preferencji. Np. możliwość wydzielenia niezależnej kuchni zamiast pokoju. Ponadto mamy do dyspozycji węzeł sanitarny i zaplecze gospodarcze.

Komunikacja
3.57 m²
Pokój
14.79 m²
Łazienka
2.11 m²
Pokój
6.4 m²
Pokój
6.4 m²
Na poddaszu znajdziemy 3 przytulne pokoje oraz łazienkę.
Najniższa cena z ostatnich 30 dni: 3950,00 zł
Zaloguj się, aby zamówić projekt lub skontaktować się z architektem
tipitom. space
Zobacz projekty