3950,00 zł





Piętra
2Pokoje
5Łazienki
2Powierzchnia
67.41 m²Type zabudowy
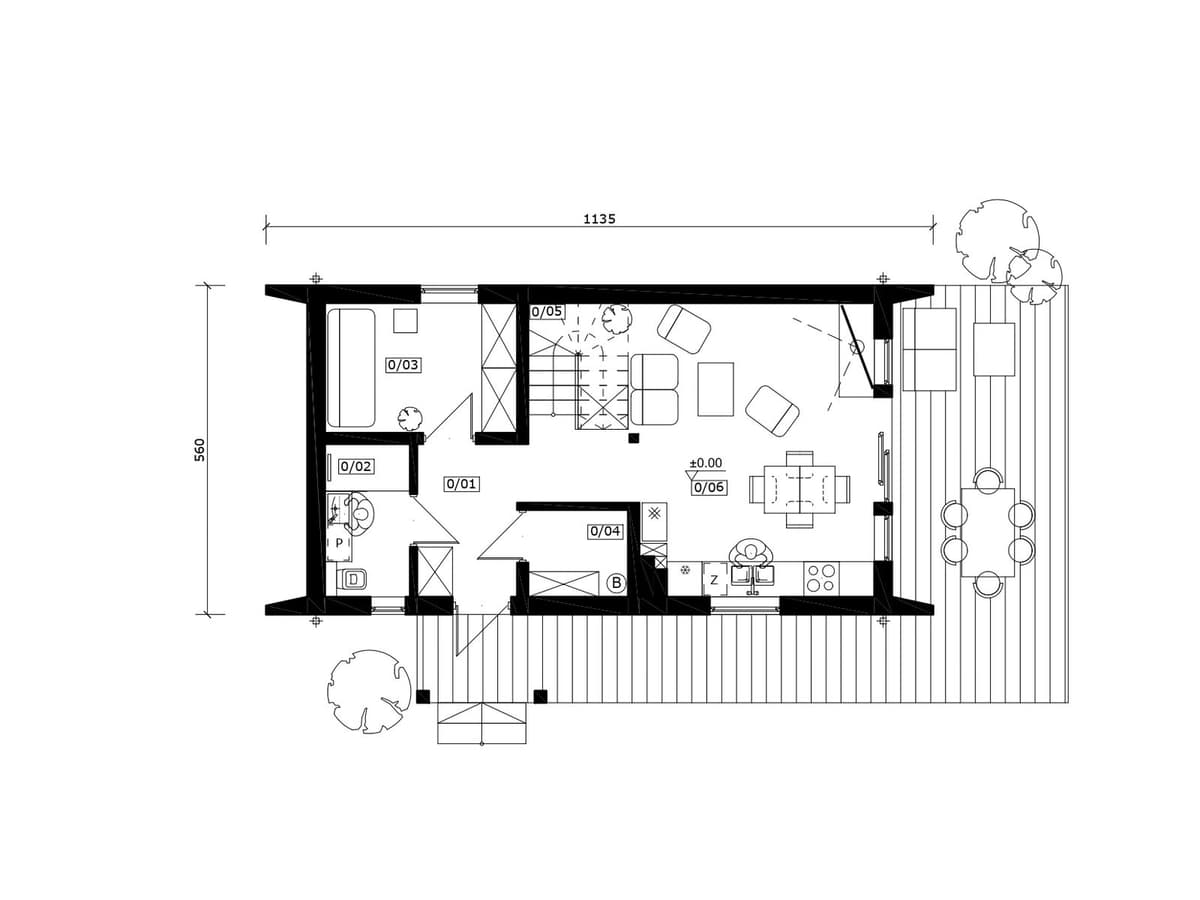
Dom jednorodzinnySamodzielny, wolnostojący budynek w technologii szkieletowej na rzucie prostokąta, przekryty dachem dwuspadowym.

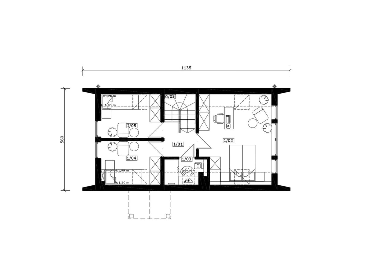
Komunikacja
6.73 m²
Łazienka
3.77 m²
Pokój
7.22 m²
Pomieszczenie gospodarcze
2.51 m²
Klatka schodowa
3.65 m²
Salon z aneksem kuchennym
19.89 m²

Komunikacja
2.73 m²
Pokój
13.78 m²
Łazienka
1.64 m²
Pokój
5.71 m²
Pokój
5.71 m²
Najniższa cena z ostatnich 30 dni: 3950,00 zł
Zaloguj się, aby zamówić projekt lub skontaktować się z architektem
tipitom. space
Zobacz projekty