Dom jednorodzinny
3950,00 zł





Piętra
2Pokoje
3Łazienki
2Powierzchnia
59.45 m²Type zabudowy
Dom jednorodzinnyNa parterze znajduje pokój dzienny z aneksem kuchennym, dwie niezależna sypialnia oraz łazienka. Na poddaszu znajdują się dwa pokoje sypialne do której prowadzą wygodne schody z salonu oraz łazienka. W pokoju dziennym jest zaprojektowane miejsce na piec opalany drewnem “koza”, która może być typowa lub z wężownicą. W naszych budynkach staramy się projektować systemy ogrzewania typu hybrydowego, czyli dwa niezależne źródła ogrzewania.

Komunikacja
6.73 m²
Łazienka
3.77 m²
Pokój
7.22 m²
Pomieszczenie gospodarcze
2.51 m²
Klatka schodowa
3.65 m²
Salon z aneksem kuchennym
20.27 m²
Budynek na kondygnacji parteru posiada część dzienną z aneksem kuchennym oraz dodatkowy pokój z możliwością adaptacji wg indywidualnych preferencji. Np. możliwość wydzielenia niezależnej kuchni zamiast pokoju. Ponadto mamy do dyspozycji węzeł sanitarny i zaplecze gospodarcze.

Komunikacja
2.72 m²
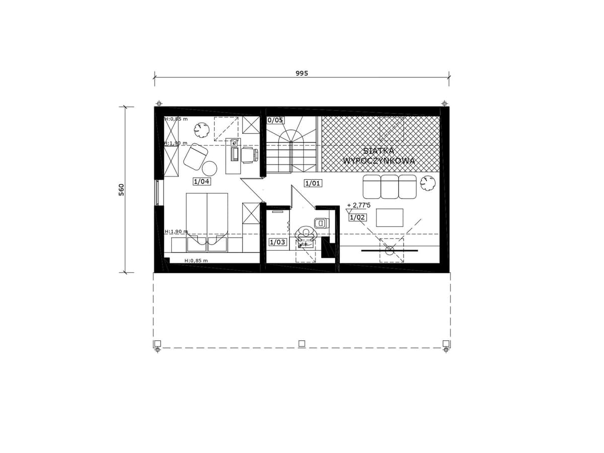
Antresola
6.99 m²
Łazienka
1.95 m²
Pokój
9.8 m²
Na poddaszu znajdziemy antresolę, 2 przytulne pokoje oraz łazienkę.
Najniższa cena z ostatnich 30 dni: 3950,00 zł
Zaloguj się, aby zamówić projekt lub skontaktować się z architektem
tipitom. space
Zobacz projekty