3950,00 zł





Piętra
1Pokoje
4Łazienki
1Powierzchnia
84.68 m²Type zabudowy
Dom jednorodzinnyWkomponowany w bryłę budynku taras z zadaszeniem stanowiącym przedłużenie głównej połaci dachu pozwala na uzyskanie przyjemnej i komfortowej strefy wypoczynkowej asymilującej wnętrze budynku z otoczeniem. Wrażenie przestronności potęguje wysoka przestrzeń części dziennej od podłogi po sam dach z wyeksponowanymi elementami konstrukcji więźby dachowej.

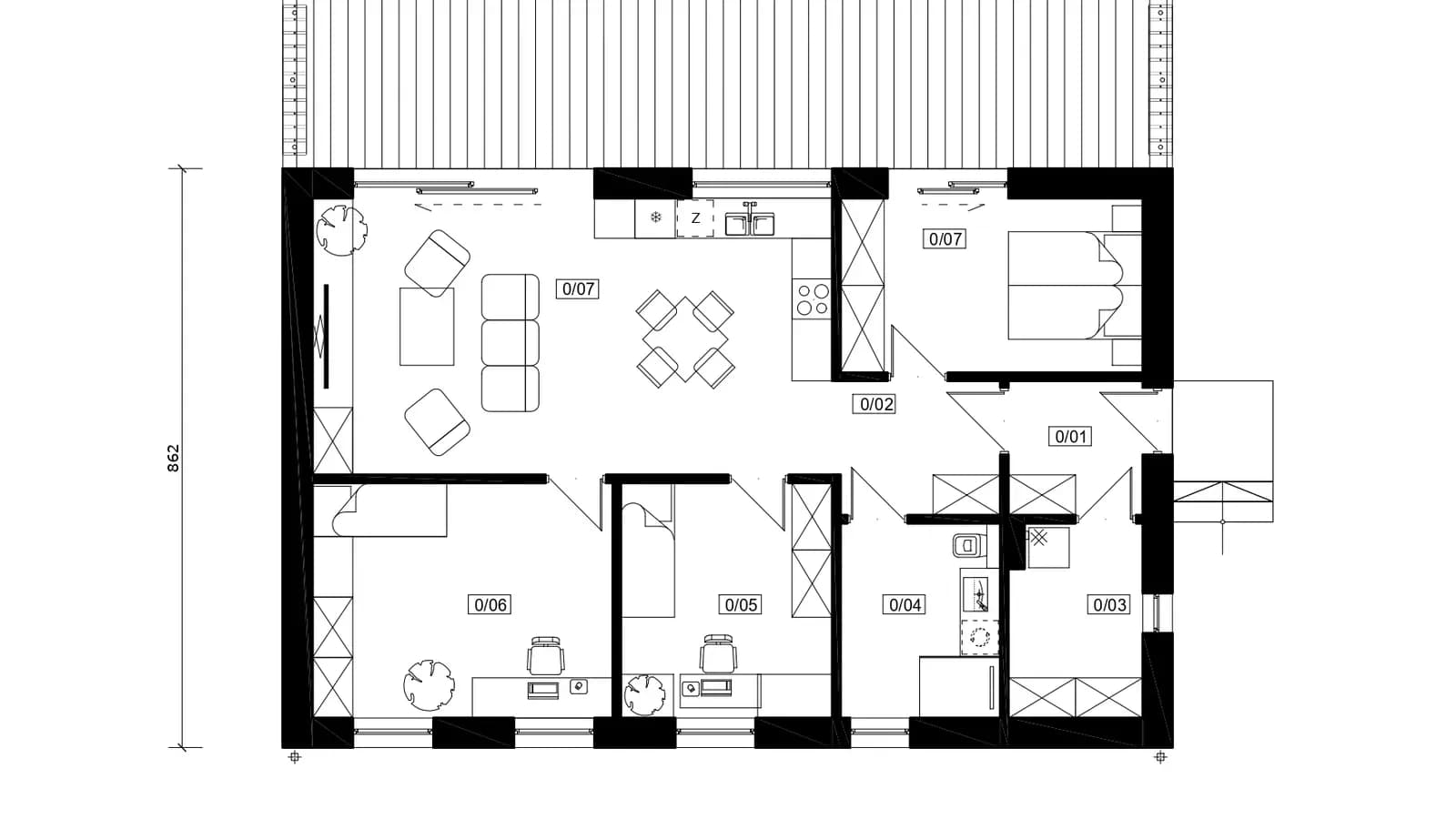
Wiatrołap/Ganek
3.88 m²
Komunikacja
4.83 m²
Kotłownia
5.49 m²
Łazienka
6.74 m²
Pokój
10.82 m²
Pokój
15.4 m²
Salon z aneksem kuchennym
31.53 m²
Pokój
11.48 m²
Budynek na kondygnacji parteru posiada część dzienną z aneksem kuchennym oraz 3 pokoje możliwe do zaaranżowania zgodnie z zapotrzebowaniem i indywidualnymi preferencjami. Dzięki zastosowaniu wiązarów dachowych uzyskano możliwość swobodnej aranżacji przestrzeni wewnątrz budynku za pomocą lekkich ścian działowych bez ingerencji w konstrukcję budynku co stanowi dodatkowy atut kształtowania przestrzeni wg indywidualnych potrzeb i preferencji.
Najniższa cena z ostatnich 30 dni: 3950,00 zł
Zaloguj się, aby zamówić projekt lub skontaktować się z architektem
tipitom. space
Zobacz projekty