4450,00 zł





Piętra
2Pokoje
5Łazienki
2Powierzchnia
119.74 m²Type zabudowy
Dom jednorodzinnyWkomponowane w bryłę budynku tarasy z zadaszeniem stanowiącym przedłużenie głównej połaci dachu pozwala na uzyskanie praktycznej strefy wejściowej oraz przyjemnej i komfortowej strefy wypoczynkowej. Wrażenie przestronności potęguje wysoka przestrzeń części dziennej od podłogi po sam dach z wyeksponowaną antresolą części poddasza. Efektu lekkości i transparentności dodają duże przeszklenia na całej ścianie części dziennej wprowadzając światło do wnętrza oraz zacierając jednocześnie tym samym granicę między wnętrzem a otoczeniem.

Wiatrołap/Ganek
3.71 m²
Komunikacja
10.01 m²
Łazienka
3.89 m²
Pokój
13.45 m²
Salon z aneksem kuchennym
48.87 m²
Pokój
9.31 m²
Kotłownia
3.22 m²
Budynek na kondygnacji parteru posiada część dzienną z aneksem kuchennym, węzeł sanitarny oraz zaplecze techniczne, w skład którego wchodzi kotłownia. Ponadto mamy do dyspozycji dwa pokoje.

Komunikacja
5.5 m²
Pokój
9.08 m²
Łazienka
6.48 m²
Pokój
9.44 m²
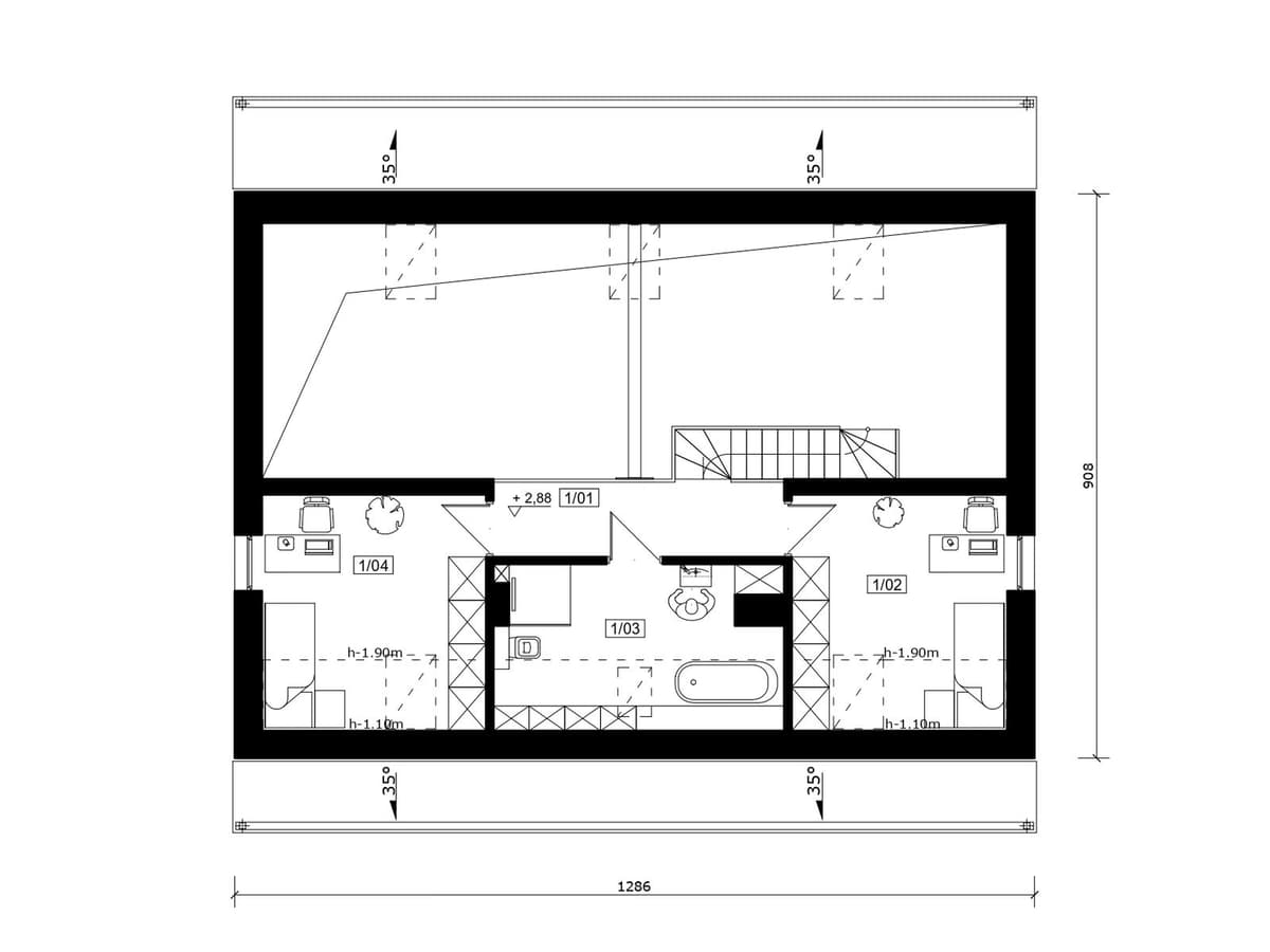
Na poddaszu znajdziemy 2 dodatkowe pokoje oraz łazienkę.
Najniższa cena z ostatnich 30 dni: 4450,00 zł
Zaloguj się, aby zamówić projekt lub skontaktować się z architektem
tipitom. space
Zobacz projekty