3950,00 zł





Piętra
2Pokoje
5Łazienki
2Powierzchnia
67.9 m²Type zabudowy
Dom jednorodzinnySamodzielny, wolnostojący budynek w technologii drewnianej szkieletowej na rzucie prostokąta, przekryty dachem dwuspadowym z oknami połaciowymi doświetlającymi pokój dzienny i antresole.

Komunikacja
6.73 m²
Łazienka
3.77 m²
Pokój
7.22 m²
Pomieszczenie gospodarcze
2.51 m²
Klatka schodowa
3.65 m²
Salon z aneksem kuchennym
19.89 m²
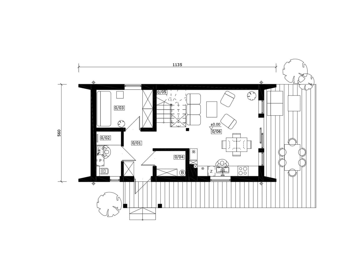
Na parterze znajduje pokój dzienny z aneksem kuchennym, niezależna sypialnia oraz łazienka. W pokoju dziennym jest zaprojektowane miejsce na piec opalany drewnem “koza”, która może być typowa lub z wężownicą.

Komunikacja
2.96 m²
Pokój
8.1 m²
Łazienka
1.69 m²
Pokój
5.69 m²
Pokój
5.69 m²
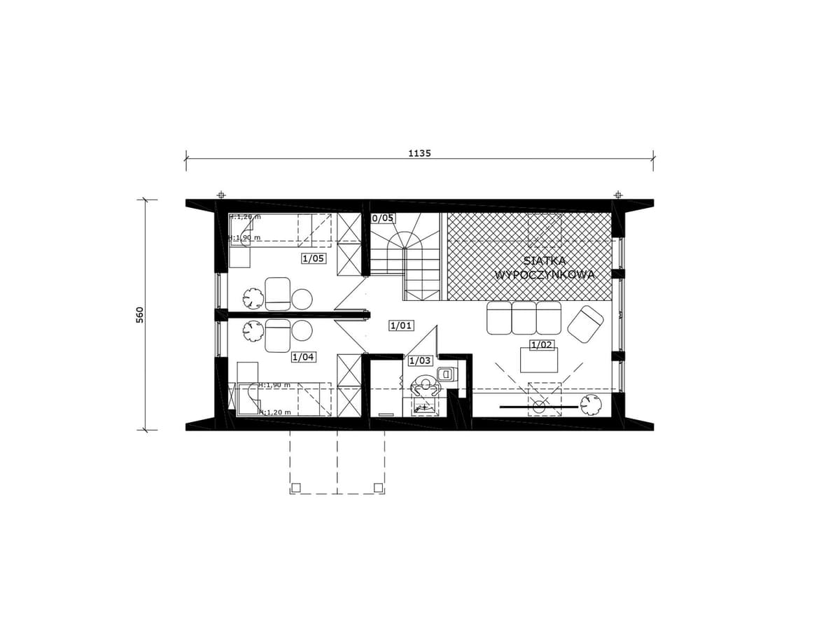
Na poddaszu znajduje się antresola do której prowadzą wygodne schody z salonu, dwa pokoje sypialne oraz łazienka.
Najniższa cena z ostatnich 30 dni: 3950,00 zł
Zaloguj się, aby zamówić projekt lub skontaktować się z architektem
tipitom. space
Zobacz projekty